Light, connection, and coastal calm.

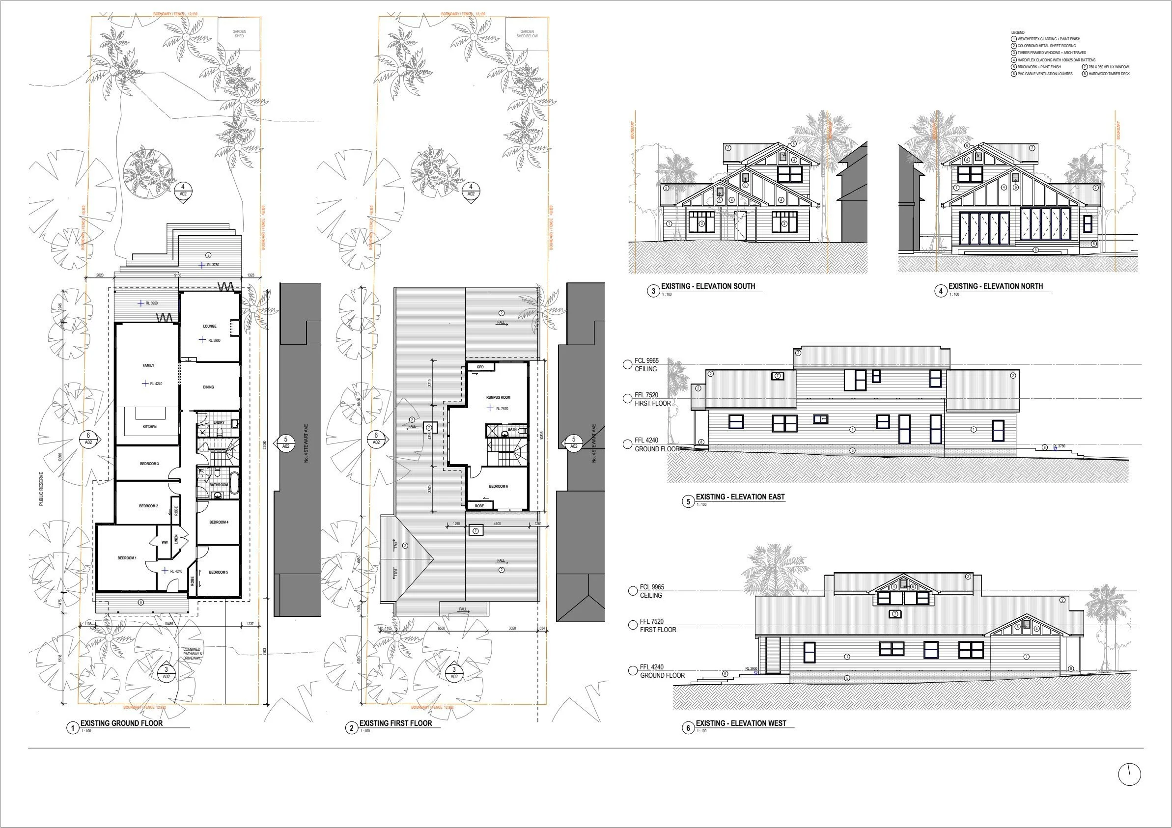
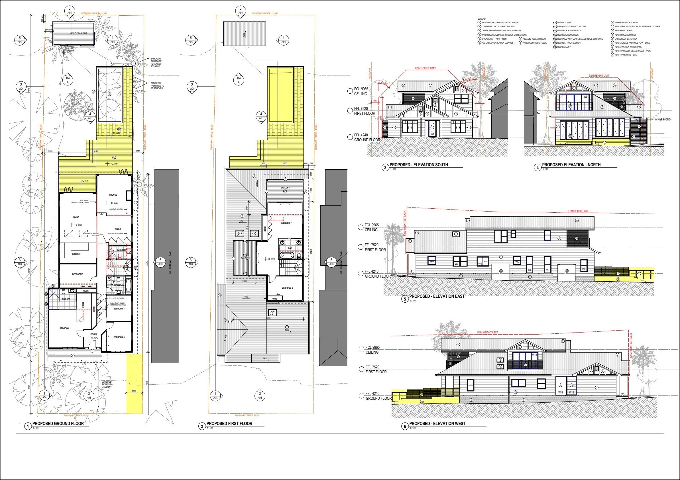
Curl Curl House is a light-filled transformation of a classic beach cottage in the coastal suburb of Curl Curl. The design responds to a core challenge: reconnecting the disconnected upper level with the heart of the home and the surrounding garden.

A reimagined internal layout brings clarity and flow to the downstairs spaces and new pool. The new upper-level balconies and openings flood the interiors with natural light and invite the outdoors in. The result is a relaxed yet refined coastal home that honours its original character while supporting modern family life — open, connected, and filled with sunshine.

Previous
Previous

Wandiligong House

Next
Next

Allambie Heights House